營銷總監:靳經理 18653877118
銷售部:張經理 18653877126  
郵箱: admin@cnshelley.com
           shelley@cnshelley.com 
銷售總部: 山東泰安長城路96號天龍國際大廈B座1405室。 
工廠地址:山東省泰安市岱岳區北集坡街道海納街789號
雪萊鋼板倉廠家回訪東平飼料廠水泥錐底鋼板倉
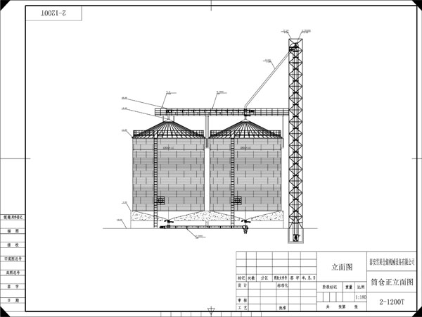
    此項目為山東泰安地區飼料廠項目,始建于2018年,項目的工作流程為糧食通過大車拉來,糧食的卸車方式為兩側卸車,遂糧食經過卸糧坑底部的刮板機輸送到E1提升機,然后流入雙層圓筒初清篩去除大小雜質,后流入E2提升機,通過鋼板倉頂的刮板機配合電動閘門的開合分別控制進入2臺水泥錐底鋼板倉。


2臺水泥錐底鋼板倉參數
水泥錐底鋼板倉TCK12811   倉筒容積為1592m3   直徑:12.8m  基礎高:2.95m 檐高: 15.36m  總高:18.44m  倉頂角:25°,選用國產優質熱鍍鋅板,倉頂上設置自然通風窗、人孔、爬梯,倉頂用航空膠泥和防水墊圈密封,沿倉檐四周設有安全防護欄。 倉筒:壁板材料選用大型鋼廠的優質熱浸鍍鋅卷板。雙面鍍鋅量為275g/㎡,終完成的鍍鋅層連續、光滑、均勻,波紋板采用沖孔形式。倉板接縫處采用航空防水膠泥條密封.立柱:主要作用是增加倉的抗震性、抗側向、豎向荷載的能力,增加倉的豎向穩定性;立柱同倉壁均采用高強度特殊定制的達克羅鍍鋅螺栓連接。



鋼板倉的產品優勢和應用
1.鋼板倉具有占地面積小、節省人工(運營成本低)機械化程度高等優點。
2. 裝配式鋼板倉可拆裝、可移動更換場地而且可以二手轉讓。
3. 公司產品回報周期短,助力企業發展。
4. 公司產品上檔次。依靠鋼板倉配套的通風系統和測溫系統使鋼板倉里糧食更加安全、可控。
5. 大大減少企業糧食如蟲害、鳥害等,不會像以往不能及時發現霉變。
主要應用于面粉廠、大米加工廠、 醬油醋廠、雜糧加工、酒廠(白酒、啤酒、米酒)、飼料廠大型農場合作社、種子公司、油脂公司(植物油)、糧食碼頭,港口、食品廠養殖場(規模化養豬場、養雞場、養牛場、奶牛場)、國家糧庫、糧貿公司、生物能源(玉米深加工、淀粉,胚芽粕,玉米壓片,酒精,淀粉糖)
2.上下游:工程機械公司、代理商、糧食烘干、糧食相關設備企業(飼料機械公司、米機公司、面粉機械、釀酒設備供應商等)

推薦資訊更多>>